Lieu
Bordeaux, France
Statut
Livré
Type
Logements
Echelle
1:100
Projet
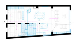
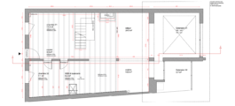
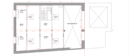
Maison Lavaud
Les clients, propriétaires de l’échoppe bordelaise, rue Lavaud à Bordeaux, souhaitent revoir totalement la structure d'usage ainsi que l’aménagement de leur maison. Pour cela, le projet prévoit de :
- Désenclaver les espaces du rez de chaussée pour harmoniser les volumes et les flux. Repenser l’espace d’accueil et d’arrivée [vestibule, entrée], en lien avec les espaces de vie et l’accès vertical à l’étage. Créer un espace invité, sur rue, avec chambre, salle de douche et rangements. Créer une buanderie indépendante, en lien avec le dressing de l’étage. Aménager les espaces de vies avec cuisine ouverte, salle à manger, salon et bibliothèque.
- Créer un espace nuit spacieux en étage Clarifier les espaces en réalignant les séparatifs et agrandir la chambre principale. Séparer les sanitaires du reste de la salle de bain et créer un grand dressing avec liaison verticale directe à la buanderie en rez de chaussée.
- Retravailler la circulation verticale pour offrir un apport de lumière naturelle à l’espace séjour et profiter de la double hauteur comme mise en valeur de l’espace central et de la cheminée.







Projet
Landslag
Lieu
Mývatn, Islande
Statut
Concours
Type
Culturel
Echelle
1:100



L’Islande est la plus jeune terre du monde. Elle s’affaisse, s’écarte, s’élève en permanence et de manière beaucoup plus active que partout ailleurs dans le monde. A Mývatn, cette activité du sol se lit dans un paysage hétérogène, constitué par les éruptions successives et une grande variété géologique. Le gravier noir des volcans, la terre rouge des champs de fumerolles, la biodiversité foisonnante de l’un des plus grands lac d’Islande construisent un grand paysage exceptionnellement varié en été. En hiver, la neige recouvre les reliefs accidentés du lieu et les visiteurs viennent du monde entier pour admirer les aurores boréales. A Mývatn la topographie a créé un lieu.
Le projet est un hymne à cette géographie islandaise, mouvementée et monumentale, comme une nouvelle formation géologique dans le lointain; une balise dans le paysage. Le volume se soulève pour laisser voir le grand paysage et accueillir les accès. A l’intérieur, le parcours topographique se poursuit tout au long de l’espace d’exposition. Une fois le sommet atteint, le visiteur jusqu'ici empêché, retrouve une vue panoramique sur la géographie islandaise. Le cheminement le long du relief participe de la mise en scène des œuvres, reconfigurable en fonction des exigences de chaque manifestation.
Le bâtiment trouve sa matérialité dans la géologie du site. Les doubles murs sont faits de béton d’agrégats volcaniques qui leur confère leur couleur noire propre aux roches islandaises. La toiture en dalle caisson est faite du même matériau et, recouverte de granulats volcaniques, sera végétalisée avec le temps par les mousses locales. La pérennité des matériaux structuraux s’oppose aux aménagements intérieurs, réalisés entièrement en bois pour assurer un maximum de flexibilité et de polyvalence dans les usages des espaces.
Ce musée, consacré à la géologie et aux volcans, est par le parcours produit par son architecture, une expérience sensible de la géographie Islandaise.









