Lieu
Sannois, France
Statut
En cours
Type
Logement
Echelle
1:100
Projet
Résidence Les carreaux Fleuris
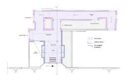
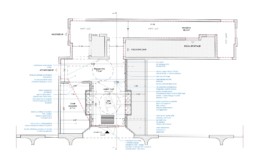
Rénovation en site occupé des accès, halls et espaces communs d’un ensemble de 272 logements. Le projet réinterroge le rôle, la fonction et les usages des espaces communs des logements, aujourd’hui lieu de l’ensemble des crispations exprimés par les habitants.
Adressage et identification, signalétique et appel. A travers le traitement de halls et de la signalétique des entrées, nous proposons de pallier à l’effet de générique en «identifiant» chaque bâtiment. Par un système global (qui puisse être appliqué à tous les halls) et différenciant (qui puisse être différent pour chaque hall) nous proposons de redonner une adresse, un spécificité à chaque bâtiment, au delà de son adresse postale.
Le hall, première pièce du foyer, des ambiances aux fonctions d’accueil. Premier espace d’accueil entre la rue et le foyer, le hall est, par extension, une première zone d’identification et d’appropriation pour les habitants. Représentatif du cadre de vie, celui-ci est un lieu de rencontre, aussi bien qu’une carte de visite pour les visiteurs extérieurs. Au sein des bâtiments, les rénovations successives ont laissé un ensemble de matériaux usés qui cohabitent dans un espace très bas de plafond. Pour repenser cet espace aujourd’hui traité de façon «résiduelle», nous prônons l’emploi de matériaux chaleureux, de qualité et un travail sur les ambiances et l’acoustique afin de lui redonner sa fonction accueillante.
Une pièce en plus ? participation et concertation habitants Une concertation habitants lancée par l’APES fait apparaitre l’absence et le besoin de locaux vélos et/ou poussettes. Les visites ont laissé deviner des espaces clos derrière des portes condamnées, en lien avec le hall de plein pied. Ces espace vides et inusités sont une opportunité pour donner aux habitants un local sécurisé de stockage. Ces espaces ne possèdent pas la surface né- cessaire au stockage de vélos mais pourront être réservés aux poussettes et compléteront l’installation d’arceaux vélo dans les espaces extérieurs.







Projet
Landslag
Lieu
Mývatn, Islande
Statut
Concours
Type
Culturel
Echelle
1:100



L’Islande est la plus jeune terre du monde. Elle s’affaisse, s’écarte, s’élève en permanence et de manière beaucoup plus active que partout ailleurs dans le monde. A Mývatn, cette activité du sol se lit dans un paysage hétérogène, constitué par les éruptions successives et une grande variété géologique. Le gravier noir des volcans, la terre rouge des champs de fumerolles, la biodiversité foisonnante de l’un des plus grands lac d’Islande construisent un grand paysage exceptionnellement varié en été. En hiver, la neige recouvre les reliefs accidentés du lieu et les visiteurs viennent du monde entier pour admirer les aurores boréales. A Mývatn la topographie a créé un lieu.
Le projet est un hymne à cette géographie islandaise, mouvementée et monumentale, comme une nouvelle formation géologique dans le lointain; une balise dans le paysage. Le volume se soulève pour laisser voir le grand paysage et accueillir les accès. A l’intérieur, le parcours topographique se poursuit tout au long de l’espace d’exposition. Une fois le sommet atteint, le visiteur jusqu'ici empêché, retrouve une vue panoramique sur la géographie islandaise. Le cheminement le long du relief participe de la mise en scène des œuvres, reconfigurable en fonction des exigences de chaque manifestation.
Le bâtiment trouve sa matérialité dans la géologie du site. Les doubles murs sont faits de béton d’agrégats volcaniques qui leur confère leur couleur noire propre aux roches islandaises. La toiture en dalle caisson est faite du même matériau et, recouverte de granulats volcaniques, sera végétalisée avec le temps par les mousses locales. La pérennité des matériaux structuraux s’oppose aux aménagements intérieurs, réalisés entièrement en bois pour assurer un maximum de flexibilité et de polyvalence dans les usages des espaces.
Ce musée, consacré à la géologie et aux volcans, est par le parcours produit par son architecture, une expérience sensible de la géographie Islandaise.









